Θα μου πεις τώρα ποια είναι η Amy και γιατί ο λόγος για το loft της; Θα σου πω. Γιατί είναι μια interior designer από τη Νέα Υόρκη, έχει ένα blog που λέγεται ΑΒCDesign όπως και η φίρμα της και έχει και ένα πολύ ωραίο σπίτι φυσικά. Η αλήθεια είναι πως από πολύ καιρό τώρα είχα το blog της στο email μου καθημερινά, αλλά δεν είχα προσέξει το σπίτι της που είναι υπέροχο. Το πρόσεξα διαβάζοντας ένα άλλο blog που αναφερόταν στο σπίτι της. Το κλου του σπιτιού της που μου τράβηξε την προσοχή όμως είναι ένας τοίχος με καθρέφτες και σε προλαβαίνω γιατί δεν είναι αυτό που νομίζεις ότι θα σου δείξω αν με ξέρεις καλά. Κοίτα καλά και θα καταλάβεις!

Καταρχάς μου άρεσαν οι φωτογραφίες του σπιτιού της, έχει λίγα δωμάτια εκεί στη Νέα Υόρκη αλλά ευρύχωρα και έχει και αυτό το τοίχο με τους καθρέφτες που σου έλεγα παραπάνω. So, έχουμε ένα τοίχο, τον βάφουμε μαύρο πίσσα και πάμε και του κολλάμε έναν κάναβο από καθρέφτες. Γίνεται σαν παράθυρο στο τέλος και είναι φοβερός. Τρελό ιδεάκι ε;
Ο υπέροχος τοίχος με τους καθρέφτες
O τοίχος βάφτηκε μαύρος με ένα σατινέ μαύρο της BM και μετά παρήγγειλαν καθρέφτες ίδιων διαστάσεων τους οποίους κόλλησαν σε έναν κάναβο με σκοπό να αναπαραστήσουν τα μικρά παραθυράκια με τα καϊτια που υπάρχουν στα Νεοϋορκέζικα loft και τους έλειπαν.

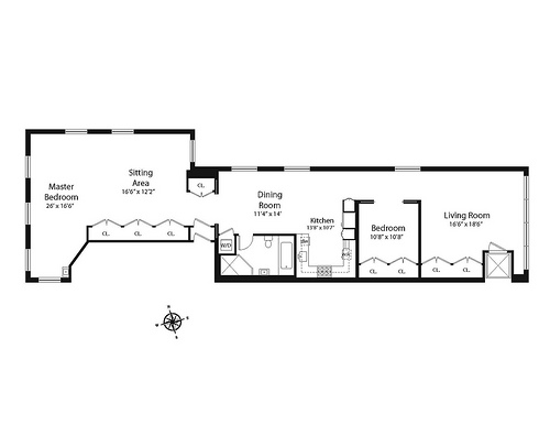
Η κάτοψη του σπιτιού είναι μακρόστενη και αυτό σε πρώτη φάση μπορεί να σου προξενήσει μια φρίκη και μια απορία για το πως μπορεί αυτό να γίνει σπίτι. Δεν είναι όμως έτσι αν μπουν τα πράγματα σε ένα χαρτί. Ναι μεν τα δωμάτια μπήκαν στη σειρά αλλά η σεπαρέ λογική της κάτοψης κατέληξε σε δύο τετράγωνους χώρους στις δύο άκρες που αποτελούν καθιστικό και κρεβατοκάμαρα και όλους τους άλλους στη μέση. Στο ενδιάμεσο, στη ζώνη που περνάς δηλαδή, είναι η τραπεζαρία σε επαφή με την κουζίνα και αναφέρεται ως dining room.

Η μακρόστενη κάτοψη
O τοίχος της κρεβατοκάμαρας που βλέπεις δίπλα στο Living Room είναι ο μαύρος με τους καθρέφτες. Ένα τρικ για έναν άχαρο ή -ακόμη χειρότερα- άδειο τοίχο.

Τα λουλούδια φέρνουν αρμονία 
Τα κουμπιά σε διακοσμητικό ρόλο 
Η τραπεζαρία στο πέρασμα
Τα τρικ της διακόσμησης
Άλλο διακοσμητικό τρικ για να ξεπεράσεις τον άδειο τοίχο; Τα πόστερ όπως ίσως είδες! Μεγάλα μεγέθη και όχι λανθασμένα, θα σου πω γιατί, από vintage πόστερ διαφημίσεων κυρίως καλύπτουν το μεγάλο τοίχο δίπλα στα παράθυρα και απέναντι της εισόδου. Είναι η χρωματική συνεισφορά στο χώρο, είναι ένα στοιχείο προσωπικότητας γιατί είναι πόστερ με ύφος συγκεκριμένο και ο λόγος των μεγάλων μεγεθών είναι η κλίμακα. Η κλίμακα του χώρου που είναι ψηλοτάβανος αλλά και η κλίμακα των καθρεφτών που έχουν καλύψει τον άλλο τοίχο.
Το στυλ μπορεί κάλλιστα να θεωρηθεί eclectic και αυτό γιατί περιέχει πολύ συγκεκριμένα αντικείμενα που αποτελούν status pieces κάποιας εποχής. Πέρα από αυτό όμως το loft αυτό κρύβει άπειρα μυστικά διακόσμησης αλλά και πολλά DIY.

Life is short, eat off the good China
Amy Beth Cupp
Περνάμε μπάνιο και κουζίνα. Αυτά είναι και τα δύο πολύ λιτά σε λευκό χρώμα με εξαίρεση το μπάνιο που πήρε ένα χρώμα από το
Στο βάθος του διαδρόμου υπάρχει ο άλλος τετράγωνος χώρος που περιλαμβάνει το master bedroom και ένα πρόχειρο καθιστικό. Αυτό είναι εδώ που τα λέμε σαν ένα αυτόνομο στούντιο και προφανώς καλύπτει τις ανάγκες απομόνωσης του ζευγαριού, υπέροχη ιδέα αν διαθέτεις το χώρο. Διαθέτει μόνο όμορφα vintage κομμάτια αλλά όχι κάτι το ιδιαίτερο σε μελέτη, κατά τη γνώμη μου. Βεβαια είναι ένα απλό διαμέρισμα στη σύλληψη του και χαρακτηρίζεται από τη τέχνη και την πολυσυλλεκτικότητα του.
Η απλή λογική των τοίχων σε λευκό, δάπεδο σε ξύλο, τέχνη στους τοίχους και λευκή υποδομή σε μπάνιο και κουζίνα, να ξέρεις είναι μια συνταγή που δεν πέφτει ποτέ έξω.





































































































