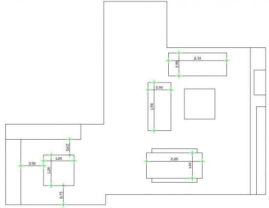
SOS, εκπομπή και η Εύα είναι εδώ. Θέσεις επίπλων; Μάλιστα Κατερίνα. Τσακ μπαμ, ένα σχεδιάκι να δεις πως θα πρέπει να βάλεις τα έπιπλα και τι διαστάσεις θα πρέπει να έχουν στο maximum. Προτείνω καναπέδες σε διάταξη γωνίας, coffee table μεγάλο τετράγωνο 1,20×1,20, τραπέζι μοναστηριακού τύπου με καρέκλες ή παγκάκι ή και τα δύο, και φυσικά μια νησίδα μεγάλη σαν πάγκος με πόδια και κενό ράφι από κάτω, σε διαστάσεις 1,20×1,20. Πολύ αμερικανιά, αλλά λατρεμένη κατασκευή.

Ιδού το σχέδιο που μας έστειλες. Ένα μικρό γραφειάκι που μου ζήτησες, το βλέπω μόνο στην πλάτη του καναπέ ή στο τοίχο απέναντι του, γιατί στα έβαλα μπαμπάτσικα τα έπιπλα για να τα έχεις άνετα. Στη νησίδα της κουζίνας μπορείτε να τρώτε καθημερινά με δύο σκαμπό, αλλά να έχεις και πολύ άνετο χώρο εργασίας. Προσωπικά ανακάλυψα στο σπίτι μου μετά την κατασκευή της δικής μου νησίδας και του τεράστιου πάγκου, πως οι μπουφέδες τύπου γεύματα και δείπνα με φίλους, έγιναν πιο διασκεδαστικοί. Στρώνω στον τεράστιο πάγκο τα φαγητά με τα πιάτα και τα ψωμάκια, ενώ η νησίδα μετατρέπεται σε πρώτης τάξεως μπαρ ακουμπιστήρι. Όποιος θέλει πιο επίσημα να φάει, καθεται στη τραπεζαρία. Ελεύθερα, περάστε!

Φιλιά.

























































































