Η ώρα είναι 11:00 και ήρθες να δεις τις προτάσεις των συναδέλφων για το σπίτι του Κωνσταντίνου. Θα ήθελα να δω πολλά σχόλια για αυτή τη προσπάθεια που γίνεται εδώ θετικά ή αρνητικά αλλά παρακαλώ να επιχειρηματολογείτε ώστε αν γίνεται συζήτηση, να είναι τουλάχιστον εποικοδομητική.
Ρίξε μια ματιά στην υπάρχουσα κατάσταση του σπιτιού του Κωνσταντίνου και μετά δες και τις προτάσεις που πραγματικά έχει ενδιαφέρον και αυτή τη φορά ο διαφορετικός τρόπος προσέγγισης και παρουσίασης του κάθε επαγγελματία. Στη συνέχεια όλες οι προτάσεις θα βρίσκονται και στη σελίδα επαγγελματίες στο όνομα του καθενός.

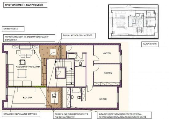
Πρόταση Λένας Μπλόνσκι

Η πρώτη μου παρατήρηση είναι πως το διαμέρισμα μου φάνηκε πολύ ‘φορτωμένο’ και ότι χρειάζεται μια καλή διαρρύθμιση να μπουν τα πράγματα σε τάξη. Με τα χρόνια όλοι μας μαζεύουμε πολλά αντικείμενα τα οποία κάποια στιγμή αρχίζουν να καταλαμβάνουν όλο και περισσότερο χώρο.
Η πρώτη εντύπωση (δηλ. η είσοδος) μπαίνοντας σ’ έναν χώρο καθορίζει το ύφος και τον ρυθμό και προετοιμάζει τον επισκέπτη για το τι θα αντικρύσει. Παρατήρησα ότι στην κατασκευή του διαμερίσματος υπάρχουν τα καθιερωμένα πια δοκάρια που δυσκολεύουν τη δουλειά του ιδιοκτήτη να ορίσει και να διακοσμήσει τους χώρους του πιο σωστά. Τη λύση μας δίνει η γυψοσανίδα με την οποία μπορούμε ταυτόχρονα να ‘κρύψουμε’ τα άσχημα αυτά δοκάρια και να καθορίσουμε τους χώρους κατασκευάζοντας ψευδοροφές.
Τα χρωματισμένα μπεζ στην κάτοψη μου είναι οι ψευδοροφές που προτείνω αφήνοντας μια εσοχή στη μέση ή οποία μπορεί να περαστεί ασημί.
Επειδή ο Κωνσταντίνος μας λέει ότι δεν μπορεί να αλλάξει την κουζίνα προτείνω να κατασκευαστεί ένας τοίχος 2μ ύψος, πάλι από γυψοσανίδα, ο οποίος θα χωρίζει την κουζίνα από το σαλόνι και την τραπεζαρία. Ο τοίχος αυτός θα μας δώσει την ευκαιρία να καθορίσουμε τους χώρους, τονίζοντας τους με χρώμα (προτείνω ο τοίχος αυτός να περαστεί ένα βαθύ μπλε σε αντίθεση με τους υπόλοιπους τοίχους οι οποίοι να περαστούν ένα χρυσό/μπεζ), κρύβοντας την κουζίνα η οποία δεν έχει άμεσα σχέση με την διακόσμηση στο σαλόνι, δίνοντας μας ακόμα ένα τοίχο να κρεμαστούν όμορφα έργα τέχνης, δημιουργώντας μια ζεστή γωνιά σαλονιού με την σύνθεση στον απέναντι τοίχο και επιτρέποντας ακόμα να περνάει φως λόγο ύψους (2μ – δηλ. δεν θα φτάνει στο ταβάνι).
Στον απέναντι από το σαλόνι τοίχο έχω κατασκευάσει μια γύψινη σύνθεση που συμπεριλαμβάνει ένθετο τζάκι, η πρόσοψη της οποίας να ντυθεί με καθρέπτη το οποίο χαρίζει περισσότερο φως, λάμψη και μεγαλώνει οπτικά τον χώρο. Η επίπεδη tv μπορεί να κρεμαστεί από πάνω από το τζάκι – και αυτό πάνω στο καθρέπτη.
Παρ’ όλο που δεν είμαι φαν να τοποθετώ την τραπεζαρία κοντά στην είσοδο αναγκάστηκα αυτή τη φορά να το κάνω για να δημιουργήσω την ζεστή γωνιά του καθιστικού μπροστά απο το τζάκι και την tv. Όμως προτείνω να μπει μια πιο μοντέρνα τραπεζαρία με περισσότερο χρώμα και λάμψη. Όμως αυτό που θα το κάνει να ξεχωρίσει και να είναι πιο OK κοντά στην είσοδο είναι μια μπανκέτα (ψηλό καναπέ) στη πλευρά του τοίχου (με μπλε ταπετσαρία σαν του διαχωριστικού τοίχου) και οι υπόλοιπες καρέκλες 2 λευκές και 2 λαχανί.
Τέλος, προτείνω η πόρτα του μπάνιου που επικοινωνεί με την κουζίνα να καταργηθεί και να προστεθεί αποθηκευτικός χώρος (ντουλάπι η ραφιέρα). Οι επισκέπτες μπορούν να χρησιμοποιούν την άλλη τουαλέτα. Έτσι θα είναι πιο πριβέ αυτή για το ζευγάρι και θα είναι πιο ευρύχωρη.
Happy decorating!
Πρόταση Έλενας Τσόκα

To σπίτι χρειάζεται επειγόντως χαρακτήρα! Οι καιροί είναι δύσκολοι για ριζικές αλλαγές και ανακαινίσεις όμως αν στις προτεραιότητες της οικογένειας είναι να αλλάξει η ατμόσφαιρα στο σπίτι αυτό δεν μπορεί να γίνει μαγικά μόνο με 2-3 προσθήκες. Χρειάζεται συνολική επιμέλεια και τροποποίηση.
Συνοπτικά λοιπόν οι σκέψεις συνοψίζονται στα παρακάτω:
Χ Ρ Ω Μ Α Τ Α
Η παλέτα που επιλέχθηκε να εισαχθεί στο χώρο έχει ακουμπήσει σε γήινα καφέ – μπεζ σε συνδυασμό με πράσινο- γκρι , λαδιές επιφάνειες.
Εξοστρακίζουμε λοιπόν το λευκό και κρατάμε κάποιους υπόλευκους τοίχους κοντά στην κουζίνα μόνο και μόνο για να μην την τονίσουμε.
Συμπληρώνουμε με μικρότερες ποσότητες κόκκινα – σκουρα καφετιά – πορτοκαλί σε αξεσουάρ & μαξιλαράκια και φυσικά ξύλινες επιφάνειες (τραπέζια).
Δ Α Π Ε Δ Ο
Σίγουρα θα πρέπει να εξαφανιστεί το πλακάκι που ότι και αν δημιουργήσουμε στην υπόλοιπη διαρρύθμιση και στα κινητά μέρη, αυτό θα είναι πάντα εκεί να μας υπογραμμίζει την ουδετερότητά του.
Δυο λύσεις υπάρχουν για το δάπεδο:
1) Oριστική αποξήλωση και τοποθέτηση νέου πχ ξύλινου που θα δώσει σαφώς μια πιο ζεστή και ήρεμη εικόνα
ή
2) Τοποθέτηση χαλιών ή μοκέτας- κοκοφοίνικα σχεδόν σε όλη την έκταση του καθιστικού που θα αποτραβήξουν το μάτι από τον λευκό κάναβο του πατώματος.
Ε Π Ι Π Λ Α
Επικρατεί μια σκληρή διχρωμία στα έπιπλα με το σκούρο κόκκινο και το εκρού που σε συνδυασμό με το λευκό πλακάκι και την λευκή κουζίνα δημιουργεί μια σχετικά απρόσωπη εικόνα.
Προτείνω λοιπόν, έστω και αν δεν είναι στα σχέδια της οικογένειας σαν βασική διορθωτική κίνηση την επιμέρους έστω αλλαγή ταπετσαρίας στις καρέκλες τουλάχιστον της τραπεζαρίας καθώς και τον εμπλουτισμό των χρωμάτων των μαξιλαριών.
Επίσης, μια άλλη ιδέα που μπορεί να αλλάξει πολύ την εικόνα της τραπεζαρίας (αλλά θέλει τόλμη για να το πράξεις) είναι να χρησιμοποιηθούν τελείως διαφορετικές καρέκλες μεταξύ τους και όχι ολόιδιες για να δώσουν μια πιο boho-chic ανάσα στο σπίτι. Αυτή την λύση υποστηρίζω περισσότερο για την συγκεκριμένη λύση οπότε και επέλεξα να απεικονίσω στις εικόνες που παρατίθενται.
Για την ιδέα αυτή, δεν χρειάζεται να αγοράσει κάποιος όλες τις καρέκλες από την αρχή… Αρκεί να δεί προσεκτικά τα υπόλοιπα δωμάτια του σπιτιού του, την αποθήκη του,κλπ. Πολλές φορές επίσης φίλοι και γνωστοί απαλλάσσονται από έπιπλα που βαρέθηκαν και τότε βρισκόμαστε μπροστά σε ωραίες εκπλήξεις – δώρα. Επίσης, μπορούμε απλά να πάμε μια βόλτα σε αγορές με μεταχειρισμένα έπιπλα και να διανθίσουμε την επιλογή μας και κάποια ακόμα κομμάτια low budget για να κάνουμε τον τέλειο συνδιασμό.
Τέλος, υπάρχει και η απλή λύση της λεγόμενης φούστας για τις καρέκλες όπου τις ντύνουμε με λευκό ή χρωματιστό λινό κάλυμμα και έχουμε απλά και φθηνά μια τελείως νέα όψη στο σπίτι. Αν θα εφαρμόζαμε αυτή τη λύση θα πρότεινα να είχαμε διαφορετικού χρώματος καλύμματα ώστε και πάλι να διατηρήσουμε αυτή την νέα ανάλαφρη διάθεση που θέλουμε να εισάγουμε στο σπίτι.
Ιδανικά θα πρότεινα και την αλλαγή ταπετσαρίας στους καναπέδες ώστε όλο το σπίτι να αποκτήσει έναν πιο ανάλαφρο και χρωματιστό χαρακτήρα που ταιριάζει σε μια οικογένεια με νέα παιδιά που αγαπούν τη μουσική, το διάβασμα κλπ.
Κ Α Τ Α Σ Κ Ε Υ Ε Σ
Οπωσδήποτε θα πρέπει να δημιουργηθεί κατασκευή στο σημείο που υποδείχτηκε και από την οικογένεια για τζάκι βιβλιοθήκη κλπ που προτείνω να εκταθεί λίγο προς τα δεξιά ώστε να δημιουργεί μια ξεχωριστή γωνιά για τον μικρό χώρο γραφείου δίπλα από την κουζίνα χωρίς να υπάρχει οπτική σύγχυση.
Το σχήμα αυτό θα αποτελέσει και το κύριο στοιχείο του χώρου, μια στιβαρή σφραγίδα γεμάτη από μουσική και γνώση αλλά και την θαλπωρή της φωτιάς.
Κ Ο Υ Ζ Ι Ν Α
Την κουζίνα θα την άλλαζα ίσως σαν πρώτη κίνηση! Όμως είναι λογικό να μην μπορεί να είναι εφικτή μια τέτοια κίνηση από την οικογένεια.
Αφού λοιπόν δεν θα αγοράζαμε νέα κουζίνα θα λειτουργούσα αφαιρετικά δηλαδή θα «έδιωχνα» όλα τα στοιχεία που δημιουργούν πολυπλοκότητα σύνθεσης , σχημάτων και υλικών.
Έτσι, σαν πρώτη διορθωτική κίνηση θα άλλαζα την απόληξη του τραπεζιού που έχει ένα αρκετά έντονο σχήμα που σε συνδυασμό με όλα τα υπόλοιπα σχήματα του χώρου κυριαρχεί και δημιουργεί μια σκούρα πινελιά που δεν συνάδει με την υπόλοιπη ορθοκανονική διάταξη και γεωμετρία του χώρου.
Με την αποξήλωση αυτού του τμήματος θα πρότεινα την εισαγωγή ενός απλού ορθογώνιου πλέον τραπεζιού από λευκό ξύλο μια και η υπόλοιπη κουζίνα δεν θα είχε αντικατασταθεί.
Θα μπορούσε να έχει ένα ψεύτικο πάχος 10 εκατοστών με πλαϊνά γείσα ώστε να φαίνεται ένα πλούσιο λευκό στοιχείο για ένα ωραίο κυριακάτικο πρωινό. Το στοιχείο αυτό θα μπορούσε να εκτείνεται και μπροστά από το πάσο σαν μια μικρή λωρίδα για να ακουμπήσει κάποιος ωραία κεριά, διακοσμητικά κλπ.
Επίσης η γωνιακή «βιτρίνα» με το δεύτερο επίπεδο στο πάσο θα πρέπει να αποξηλώθεί και αυτή αφήνοντας ελεύθερο το πάσο που αυτή τη στιγμή φαίνεται να μην μπορεί κάποιος να το εκμεταλλευτεί σωστά. Το δεύτερο επίσης επίπεδο δεν έχει πρακτική χρησιμότητα σε σπίτι, είναι μια λογική που χρησιμοποιείται σε επαγγελματικούς χώρους για να «κρύβει» κανείς τον χώρο εργασίας και να σερβίρει στο επάνω επίπεδο.
Στην προκειμένη περίπτωση μικραίνει τον πάγκο και τελικά απλά φιλοξενεί αντικείμενα κάτω από την επιφάνειά του.
![]()
Πρόταση Κωνσταντίνας Νάστου
Για το σπίτι του κ. Κων/νου & της κας Ρούλας σας δείχνω τα εξής (όπως φαίνονται στο κολάζ):
– Στην 1η foto πάνω αριστερά είναι η είσοδος του σπιτιού. Μόλις μπαίνουμε στο σπίτι, στην είσοδο δεξιά έχω βάλει μια τρίφυλλη ντουλάπα η οποία εξυπηρετεί και σαν γκαρνταρόμπα. Ακριβώς απέναντι από την είσοδο ο τοίχος έχει επενδυθεί με ταπετσαρία και στο κέντρο με καθρέφτη μπρονζέ.
– Στην 2η foto, αριστερά, δημιουργούμε μια κατασκευή με ράφια από γυψοσανίδα, η οποία θα φιλοξενεί: T.V., συστήματα ήχου, D.V.D, ενθύμια, το ενυδρίο κ.τ.λ..Η «πλάτη» αυτή της κατασκευής είναι «ντυμένη» με την ταπετσαρία η οποία φτάνει έως την είσοδο.Για το «ψεύτικο» τζάκι κ. Κωνσταντίνε, δεν το συζητώ!
Την γωνιά που δημιουργείται μεταξύ μπαλκονόπορτας & σύνθεσης την καλύπτω με μπρονζέ καθρέφτη –και την εσοχή- και ακριβώς εκεί τοποθετούμε γλάστρες με φυτά εσωτερικού χώρου.
– Στην 3η foto σας δείχνω τον χώρο εάν δεν αλλάξει το δάπεδο. Προτείνω ξύλινο δάπεδο.
– Στην 4η foto φαίνεται το σαλόνι, η τραπεζαρία και ο τοίχος που απομονώνει την κουζίνα από αυτούς τους χώρους. Επειδή η κουζίνα δεν θα αλλάξει την «κρύβουμε» με τοίχο & ένα σταθερό άνοιγμα με τζάμι αμμοβολής (το πλαίσιο του ανοίγματος είναι σκουρόχρωμο όπως το τραπεζάκι του σαλονιού, στην foto δείχνει ανοιχτόχρωμο). Για την κουζίνα συμφωνώ με το σχόλιο της Vasia και προτείνω τα ίδια.
– Στην 5η foto είναι ο χώρος του γραφείου. Στον τοίχο πίσω από τις καρέκλες έχουμε μια μεγάλη κορνίζα, στην οποία συγκεντρώνουμε όλες τις μικρές αγαπημένες φωτογραφίες. Υπάρχουν πολλές κορνίζες στο σπίτι σας και είναι κουραστικό. Κρατήστε λίγες από αυτές και όλες τις υπόλοιπες στο μεγάλο κάδρο.
– Στην κεντρική foto είναι μια ξύλινη κατασκευή με εσοχές για να χρησιμοποιείτε ως κάβα για τα ποτά σας. Από πάνω στον τοίχο έχετε κάποιους από τους πίνακές σας όπως και στον τοίχο απέναντι στην τραπεζαρία.
*****Τα έπιπλα σαλονιού και τραπεζαρίας είναι μια χαρά. Εάν κατάλαβα καλά στην οροφή έχετε σποτάκια σε διάφορα σημεία. Εάν όντως υπάρχουν καταργήστε τα. Χρησιμοποιήστε φωτιστικά δαπέδου ή απλίκες.
Πρόταση Μαρίας Μπόγη
Με χρώματα που θυμίζουν αμμουδιές και βοτσαλωτές παράλιες δημιουργούνται χώροι για ανάπαυση και ευχάριστη διαμονή στο σπίτι του Κωνσταντίνου και της Ρούλας.
Στην είσοδο το δοκάρι που υπάρχει κρύβεται μέσα στη γυψοσανίδα που προεκτείνεται συμπεριλαμβάνοντας και το σύνθετο μπροστά από την τραπεζαρία. Και δημιουργεί χώρο για σποτ και κρυφούς φωτισμούς.
Ο τοίχος απέναντι από την πόρτα εισόδου και πίσω από το μικρό μπουφέ ντύνεται όλος καθρέπτη . Η κολώνα από γυψοσανίδα φιλοξενεί μικρά γλυπτά και ένα μικρό ενυδρείο.
Το σύνθετο που απλώνεται μετά από την είσοδο είναι εντοιχισμένο απέριττο με χώρο για τρεις πίνακες βιβλία και επιλεγμένα διακοσμητικά αντικείμενα και ενσωματωμένο κρυφό φωτισμό και μικρά σποτ. Τα χρώματα είναι από την παλέτα της ΒΙΒΕΧΡΩΜ D508C, D614F η παραπλήσια.
Στον μικρό χώρο πίσω από το σύνθετο παραμένει ο χώρος των γραφείων αλλά αλλάζει το σχήμα και η διάταξη του γραφείου ώστε να λειτουργεί σαν δυο σε ένα.
Πλαισιώνεται δεξιά και αριστερά από στήλες βιβλιοθήκες ενωμένες μεταξύ τους με ράφια για βιβλία σε σχήμα Π .
Η τραπεζαρία που είναι εκεί λακάρεται σε σκούρο χρώμα του γραφίτη και πατινάρετε με χρώμα ασημί.
Η κουζίνα που αναγκαστικά κυριαρχεί στο χώρο θα πρέπει να μεταμορφωθεί λίγο για να μπορεί να δένει αρμονικά. Ο ποιο οικονομικός και απλός τρόπος είναι να λακαριστή σε ένα παλ χρώμα της άμμου και τα κομμάτια με το ροζ φούξια χρώμα να πάρουν το χρώμα του γραφίτη. Μια άλλη λύση είναι να ντυθεί με ταπετσαρία σε ανάλογες αποχρώσεις και απαλά σχήματα που θα μεταμορφώσουν εκπληκτικά και ευχάριστα τον χώρο.
Η κρεβατοκάμαρα των φίλων μας ντύνεται και εκείνη σε τόνους της τρυφερότητας της γλυκύτητας και της γαλήνης.
Τα κομοδίνα ενσωματώνονται σε μια κατασκευή από γυψοσανίδα με κρυφούς φωτισμούς και πορτάκια με τζάμι αμμοβολής. Η κατασκευή παρόλο που δεν έχει πολύ πολύ πάχος θα μπορεί να φιλοξενήσει μικρά βιβλία, συλλογές και μικρές εικόνες. Στο κεφαλάρι μια ταπετσαρία με τρυφερά χρώματα δίνει προσωπικότητα και στυλ στον χώρο.
Παιδάκια, είχα πει πως και εγώ θα προτείνω, αλλά δεν πρόλαβα δυστυχώς λόγω πολλών υποχρεώσεων. Θα συμμετέχω όμως σίγουρα στον επόμενο διαγωνισμό που έρχεται τη Δευτέρα. Κατά τα άλλα περιμένω τη γνώμη σας για τα σημερινά.




















































































































