Ερωτήσεις. Πολλές.

Η φίλη Βασιλική έχει πολλές απορίες και πάμπολλες φωτογραφίες, αλλά εγώ μπουρδουκλώθηκα μέσα στο γράμμα της και τις φωτό και δεν κατάφερα να βγάλω άκρη. Το δίνω σε εσάς να το λύσετε το γρίφο και στη συνέχεια θα ακολουθήσω με άποψη. Ίσως αν το δω δημοσιευμένο να το εμπεδώσω το θέμα. Για δουλέψτε και λίγο Rdeco-ρίτες και Rdeco-ρίτισες! Να δω τι μαθαίνετε τόσο καιρό κιόλας.

Αγαπημένη Εύα

το ήξερα ότι δεν με ξέχασες…. Είσαι συγκινητικά συνεπής… όχι μόνο με μένα – με όλους. Εύα είσαι θεά. Αρχαία Ελληνίδα φυσικά. Η θεά της Εστίας ίσως; Μπήκα και είδα εκ των υστέρων ότι ακόμη και το συνοδευτικό κείμενο των φωτο που σου είχα στείλει ήταν κομμένα – δεν ξέρω πώς. Για τις συντομεύσεις των φωτο έχεις δίκιο και να με συγχωρείς.

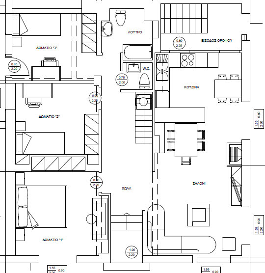
Σου ξαναστέλνω κάποιες φωτο και το σχέδιο του ισογείου.

Το πάνω επίπεδο που είναι περίπου 30 τ.μ. δεν το αγγίζω προς το παρόν, το θεωρώ πιό εύκολη υπόθεση ή το αφήνω για αργότερα. Για αργότερα, αφήνω και τα υπνοδωμάτια ( δυο παιδικά κι ένα εμάς- του ζεύγους)

1ο θέμα: βιβλία αγαπημένα

Όπως ανεβαίνω τη σκάλα, στο αριστερό χέρι θέλω να βάλω ράφια για βιβλία και με ποιό τρόπο να το κάνω ; Στο βάθος της σκάλας, όπως ανεβαίνουμε απέναντι, θα φτιάξω βιβλιοθήκη επίσης μέχρι του σημείου να τα φτάνω κι από πάνω ένα έργο τέχνης ίσως; πού αλλού θα μπορούσα να βάλω βιβλιοθήκες; τα βιβλία είναι πάρα πολλά και μου αρέσει να τα βλέπω κιόλας εκτος του να τα διαβάζω.

2ο θέμα: χρώμα;

Τι χρώματα να βάψω τους τοίχους; θέλω να παίξω με χρώματα (της Κνωσσού τα λατρεύω) έχω συμφωνήσει με τον ελαιοχρωματιστή της Benjamin Moore να χρησιμοποιήσουμε.

Το σπίτι είναι ψηλοτάβανο και αυτό μου αρέσει πάρα πολύ – ίσως υπήρξε ο βασικός λόγος για να το διαλέξω . Μου αρέσουν τα χρώματα στα σπίτια, μου αρέσουν και τα ολόλευκα σπίτια. Το συγκεκριμένω σπίτι είναι πολύ φωτεινό. Με το χρώμα στα ταβάνια τι να κάνω; Να κάνω παιχνίδι ή να τα λευκάνω; Όπως θα δείς, δεν είναι γωνία με τον τοίχο – κάνει κούρμπα και είναι υπέροχη αυτή η κοιλότητα – όπως μπορείς να δεις από τις φωτο που σου στέλνω.Το γύψινο που έχει μπει, οριοθετεί την περιοχή του ταβανιού, «κατεβάζοντάς» το λίγο.

Τα έπιπλα που ήδη έχω είναι μια καρυδένια τραπεζαρία με καρέκλες βαριές από το Μοναστηράκι απλώς βαμμένες στο ίδιο χρώμα που θα μπούνε δίπλα στο τοιχάκι της κουζίνας. ¨Ενας μπουφές στο ίδιο στυλ και χρώμα, μάλλον χωράει μόνο στην είσοδο απέναντι από τα σκαλάκια που ανεβαίνουμε για να μπούμε στο απίτι και αριστερά από τη σκάλα που ενώνει τα δυο επίπεδα. ένα ίδιου ύφους χαμηλό μπουφεδάκι σκεφτόμουνα να το βάλω απέναντι από το Π της κουζίνας στο τοιχάκι και να το χρησιμοποιώ για τα γλυκά του κουταλιού και τις μαρμελάδες μου. Καναπέδες δεν υπάρχουν προς το παρόν. Μου αρέσουν οι άνετοι . έναν καναπέ και μια μπερζέρα που ήδη έχω θα τα βάλω στο πάνω επίπεδο. Οι κουρτίνες δεν μου αρέσουν γενικώς, ούτε και τίποτε άλλο (ρόμαν π.χ.). Επειδή όμως το σπίτι είναι στο δρόμο, πρέπει κάτι να βάλω. Σκεφτόμουνα γάζες χρωματιστές ή όχι. Τι λές;

3ο θέμα: κουζίνα

Στο τοιχάκι που έχει χτιστεί (με την δική σου πολύτιμη βοήθεια βρέθηκε το σωστό ύψος) και που βλέπεις στη φωτό του ισογείου, όπωε κοιτάς το τζάκι από μπροστά, στο αριστερό σου χέρι, τι χρώμα πάγκου να βάλω που έχω κολλήσεις σου στέλνω το σχ’εδιο της κουζίνας για να δεις το χρώμα (ανθρακί βακελίτης με νερά ξύλου πάνω – κάτω, ή αυτό κάτω και λευκά τα πάνω ντουλάπια; ;ή ένα σοκολά ισόβενο –τελευταίο στην προτίμησή μου-;) στο συγκεκριμένο ανθρακι χρώμα, το οποίο είναι πολύ ιδιαίτερο, δύο χρώματα πάγκων μόνο μου αρέσουν ; το κατάλευκο και το πέτρα σταχτί (που ασημίζει λίγο). Πλακάκια πίσω και στις δύο περιπτώσεις, υπέροχα λευκά. Πώς όμως θα κάνω τη μαγκιά – που με έχεις πείσει ότι αξίζει- να δέσω το πάτωμα με τον πάγκο;

4ο θέμα: δάπεδο

Κι ερχόμαστε στο φοβερό και τρομερό κεφάλαιο «πάτωμα»; Λατρεύω το ξύλο, αλλά είναι πανάκριβο και οι εποχές είναι των ισχνών αγελάδων. (άσχετο: εγώ για να καταλάβεις έχω χαθεί κι από το Rdeco κι από μένα, γιατί έχοντας δανειστεί απ΄όπου μπορούσα, πάλι δεν είναι σίγουρο ότι σε δυο μήνες θα έχω μπει στο σπίτι να γλυτώσω το ενοίκιο και να μου μείνει μόνο (;) τα δάνεια στην τράπεζα και στα σόγια και αν δεν ήμουν η ίδια ειδικός επιστ. για ψ. παθήσεις, θα την είχα πάθει την κατάθλιψη-δεν το συζητώ, κλείνει η παρένθεση)

Έχω και δυο παιδάκια διαβολάκια ( κορίτσι 6, αγόρι 8 : αυτά είναι πολλά θέματα μαζί !!!!!!!!!!!) όλοι μου λένε να βάλω πλακάκια. Πήγα και είδα τις πατητές τσιμεντοκονίες που προτείνεις, αλλά είναι πολύ ακριβά – απλησίαστα. Ίσα που μου τρέξανε τα σάλια. Βρήκα πλακάκι 60ρι σε διάφορα χρώματα, μέσω γνωστού πολύ καλές τιμές, αλλά 12 ευρώ το τ,μ, θέλει ο πλακάς για την τοποθέτηση. Σήμερα έριξα (κάποιος μάστορας δηλαδή) τσιμεντοκονία για ομοιομορφοποίηση του δαπέδου. Ανέβηκε από 2 εκ. έως 5 εκ. ο πλακάς λέει ότι μπορώ σε δυό βδομάδες να βάλω πλακάκι. Εγώ πάλι το φοβάμαι. Εσύ τι λες;

Νομίζω πως πρέπει να σταματήσω για σήμερα. Θα συνεχίσω άλλη μέρα με συμπληρωματικά θέματα.

Όπως καταλαβαίνεις, τα θέματά μου είναι πολύ επείγοντα… σε ευχαριστώ από τα βάθη της καρδιάς μου προκαταβολικά.

Περιμένω εναγωνίως!

Βασιλική

Kαι εγώ περιμένω. Μετά δείτε το νέο project που το ονόμασα Bachelor Glam και φυσικά βρίσκεται στο Design Deco.

By continuing to use the site, you agree to the use of cookies. more information

The cookie settings on this website are set to "allow cookies" to give you the best browsing experience possible. If you continue to use this website without changing your cookie settings or you click "Accept" below then you are consenting to this.

Close