H Μαρία είναι νέα ιδιοκτήτρια ενός διαμερίσματος 95τμ. Δεν έχει τίποτα να βάλει ακόμα στο σπίτι της απ’ ότι μου είπε, εκτός της τηλεόρασης. Με ρωτάει λοιπόν τι να βάλει και πως να τα βάλει. Έπιπλα, τραπέζια, καρέκλες κτλ. Μικρός χώρος, λίγες επιλογές πρέπει να πω, αλλά γλυκούλι και χαλαρό μου φαίνεται μόνο από την κατοψη. Ορίστε το γράμμα, ορίστε και το σχέδιο:

Αγαπητή Εύα, πρώτα από όλα συγχαρητήρια για το Rdeco, είναι πραγματικά καταπληκτικό και οι προτάσεις – ιδέες σου φανταστικές! Γι αυτό κι εγώ αποφάσισα να ζητήσω τη γνώμη σου! Λοιπόν, πριν λίγο καιρό αγορασαμε ένα σπίτι, τώρα σοβαντίστικε, ειναι 95 τμ. με open plan κουζίνα, και 2 υπνοδωματια. Η τηλεόραση θα είναι στον τοιχο δίπλα από το γωνιακό τζάκι και στην κουζίνα , η οποία θα είναι λευκή λάκα, θα έχουμε κι ένα ψηλό πάγκο-τραπέζι με stools, όπως μπαίνεις στο σπίτι. Το προβλημά μου είναι ότι δεν ξέρω πως να διαμορφώσω τον χώρο του living room (σαλόνι-τραπεζαρία). Γενικά μας αρέσουν οι μινιμαλ γραμμές και όχι τα πολύ έντονα χρώματα. Το πάτωμα θα είναι όλο δρύινο. Δεν ξέρω αν σε έχω κατατοπίσει με τις πληροφορίες που σου έδωσα, σου στέλνω μία κάτοψη για να καταλάβεις τον χώρο, και όποτε έχεις χρόνο πες μου τις ιδέες σου, θα με βοηθήσουν πολύ! Ευχαριστώ πολύ πολύ!
Μαρία
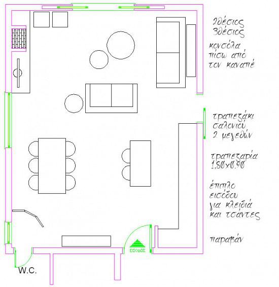
Βλέπετε λοιπόν Μαρία, πως τα βάζω τα πράγματα. Μπαίνοντας στο σπίτι, αριστερά έχουμε μια κονσόλα ή ένα ψηλότερο έπιπλο με πόρτες για να κρύβετε τα πράγματα που κουβαλάτε όταν μπαίνετε. Δίπλα μας αρέσει να βάλετε ένα παραβάν για να ψιλοκρύβετε την είσοδο στο W.C. Πίσω από το παραβάν, αν είναι κάτι που είναι σταθερό αρκετά, ή μια κατασκευή, ίσως θα μπορούσαμε να κρεμάσουμε και τα παλτό μας. Αμέσως μετά περνάμε στην τραπεζαρία, τρώμε ένα μεζεδάκι που ελπίζουμε πως θα έχει βγάλει η οικοδέσποινα και αφού χορτάσουμε φτάσαμε στο καθιστικό. Ένας διθέσιος και ένας τριθέσιος καναπές , είναι αρκετοί για αυτό το σπίτι.

Η λίγο δύσκολη διάσταση του χώρου που είναι άβολη για τα έπιπλα, κρύβεται με την τοποθέτηση ενός τραπεζιού-κονσόλας πίσω από τον 3θέσιο. Εκεί επάνω μπορείς να βάλεις διακοσμητικά και άλλα ωραία και από πάνω να κρεμάσεις πίνακες. Όσον αφορά στα τραπεζάκια σαλονιού, σου προτείνω και εσένα δύο στρογγυλά διαφορετικών διαστάσεων για να φτάνουμε να πιούμε το καφεδάκι που θα μας τρατάρετε, αφού λόγω του χώρου πρέπει να εξασφαλίσουμε την εύκολη πρόσβαση στο μπαλκόνι απ\’ όλες τις πλευρές του δωματίου. Συμπληρωματικά δύο ταμπουρέ για καθίσματα στο καθιστικό ή μπροστά στο τζάκι που αν έχει και λίγο ψυχρούλα θα ανάψει για να μας ζεστάνετε.
























































































