Το ξέρω πως αν δεν έχεις το χώρο σου να τον ευχαριστηθείς σε πιάνει ένα μαράζι και μια αναμπουμπούλα. Παλιά όταν δεν είχα φτιάξει το σπίτι μου, παρόλο που πάντα ήταν ένα από τα θετικά σπίτια απ΄ ότι μου έλεγαν, το πάθαινα και εγώ. Τώρα που το έφτιαξα και με το σύνδρομο ή αλλιώς πετριά που έχω, πάλι νιώθω ώρες-ώρες πως είναι χάλια και σε κανέναν δεν αρέσει. Αλλά ήθελα να μπορούσα να ρωτήσω: άμα είσαι σπίτι και δεν είσαι όπως πρέπει, πως νιώθεις. Να βγαίνετε λοιπόν και να ρωτάτε το σπίτι σας που και που: Σπίτι μου, σπιτάκι μου πως νιώθεις; Μήπως θα ήθελες κάτι ακόμα να σου έχω; Μήπως θα ήθελες έναν καθρέφτη ακόμα σε αυτόν τον υπέροχο τοίχο σου; Άμα το κάνετε καθημερινά, θα δείτε που θα έρθει η απάντηση, μπορεί όχι από τον τοίχο (δε το χάσατε ακόμα) αλλά από μόνη της. Πάμε σήμερα να δούμε το σπίτι της αναγνώστριας Κυριακούλας που πιστεύω ότι το ρώτησε και μας λέει:
Αγαπητό Rdeco, γεια σου!
Ψάχνοντας λύσεις διακόσμησης για το σπίτι μας έπεσα πάνω στη σελίδα σου και έχω κολλήσει κι εγώ…. Ελπίζοντας να μας βοηθήσεις σε “προβληματάκια” σε σχέση με την κουζίνα – σαλόνι μας, σου στέλνω φωτογραφίες και μία πρόχειρη κάτοψη (χρήσει word, sorry για την ασχετοσύνη…). Να εξηγήσω αρχικά, ότι μπήκαμε πρόσφατα στο σπιτάκι μας και τα έπιπλα τα είχα ήδη, γι αυτό και ίσως δεν ταιριάζουν πολύ με το ύφος του σπιτιού…Έχουμε λοιπόν τις εξής απορίες:

1. Πώς θα μπορούσαμε να κρύψουμε κάπως διακριτικά την κουζίνα, χωρίς να κόβει φως (φώτο 1); Τουλάχιστον να μη φαίνεται φάτσα κάρτα με το που μπαίνεις η ηλεκτρική κουζίνα και η ακαταστασία που εύκολα προκύπτει κοντά στο νεροχύτη… (Λες πρέπει να καταργήσουμε το υποτυπώδες μπαρ;)
2. Θέλω να βάλω μικρό τραπεζάκι μέσα στην κουζίνα με 2 καρεκλίτσες μαζεμένες ή σκαμπό (έχω βάλει ένα 60×60 προσωρινά και δεν επμοδίζει, αντίθετα χρησιμεύει πολύ). Σκεφτόμουν για 90×90 με δυνατότητα προέκτασης. Να προτιμήσω να είναι ουδέτερα, όλα μεταλλικά; Αν, βέβαια, φαίνονται, θα δείχνουν παράταιρα φοβάμαι με την έθνικ τραπεζαρία… (Βέβαια καταλαβαίνω πως τα σοβαρά – μοντέρνα κόκκινα ντουλάπια και το inox της κουζίνας, μάλλον δένουν δύσκολα με τα καφεκίτρινα έθνικ – καλογερίστικα έπιπλα…). Είχα σκεφτεί να προεκτείνουμε τον πάγκο προς τα μέσα, αλλά η πιο ψηλές καρέκλες δε θα βολεύουν νομίζω…
3. Από το σαλόνι, η προέκταση των ντουλαπιών φαίνεται (φώτο 2 και 4) και, για να κρυφτεί, σκεφτόμασταν να προεκτείνουμε και τη μεσοτοιχία με γυψοσανίδα. Αλλά και για να μην κόψει το φως, πάνω στην προέκταση και κάποια γλάστρα με αυτά τα ψηλά λευκά κλαδιά που κυκλοφορούν. Θέλουμε να βάλουμε καναπέ γωνία (λαδί ανοιχτό σκεφτόμουν) απέναντι από το τζάκι. Αρχικά σκεφτόμασταν το βασικό μεγαλύτερο κομμάτι να είναι όπως ο λευκός καναπές που έχουμε τώρα και το ανάκλιντρο στη μεσοτοιχία, ώστε με το που μπαίνεις να το βλέπεις και να είναι όμορφο. Σε ένα κατάστημα όμως μας πρότειναν να εκμεταλλευτούμε το μήκος του χώρου, ο βασικός καναπές στη μεσοτοιχία και το ανάκλιντρο μπροστά από την μπαλκονόπορτα. Η τηλεόραση να έρθει δεξιά από το τζάκι σε σύνθεση που θα καλύπτει όλο τον τοίχο δεξιά από την κολόνα… Ίσως πάλι μπορεί να μπει χαμηλή κονσόλα κολλητά με τον καναπέ μπροστά από την μπαλκονόπορτα, για να εκμεταλλευτούμε καλύτερα το κομμάτι αυτό.
Εσύ τι μας προτείνεις;
4. Δεξιά από το τζάκι (φώτο 3) έχουμε βάλει πρόχειρα ένα παλιά έπιπλο τηλεόρασης με περιοδικά (ξέρω, δείχνει λίγο χάλια). Εκεί έλεγα να μπει μπαουλάκι με μαξιλάρες, ή τραπεζάκι με με κάποιο βάζο ή κεριά. Και από πάνω να κρεμάσουμε αυτές τις κορνιζούλες. Να τις βάλω σε σειρά ή τυχαία;
5. Αυτά τα έπιπλα έχουν μία πολύ λεπτή επίστρωση βερνικιού που φεύγει με την τριβή ή αν ακουμπήσεις κάτι υγρό μπορεί να αφήσει στάμπα. Μπορώ να τα περάσω με κάτι και που θα το βρω (η κρέμα οβερλάι δεν αρκεί); Το εξαιρετικά μικρό τραπεζάκι που έχουμε τώρα την TV (ψάχνουμε για άλλο μακρύτερο) βάφεται λες; Με τι μπογιές; Μήπως θέλει χέρι ειδικού;
6. Γενικά, το στυλ του σπιτιού θα ήθελα να βγει κάτι σε αριστοκρατικό έθνικ (αν υπάρχει κάτι τέτοιο), ίσως με κάποιες μοντέρνες πινελιές (βλέπε κόκκινο πορτατίφ στον μπουφέ, φώτο 4). Το στυλ του “Αλχιμιστή” και γενικά τα χειροποίητα και παραμυθένια μ\’ αρέσουν πολύ, αρκεί να μην είναι πολύ βαριά… Κουρτίνες πάλι σε λαδί με χρυσό σκέφτομαι. Έχεις να μου προτείνεις κάτι πάνω στη διακόσμηση και τα έπιπλα; Ίσως κάποια μαγαζιά με αυτά που αναζητώ;
Πολλά ερωτήματα μαζεύτηκαν τελικά! Οποιαδήποτε παρατήρηση από ειδικούς και μη, θα την εκτιμήσουμε πολύ!!!
Σας ευχαριστούμε!
Κυριακούλα
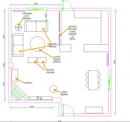
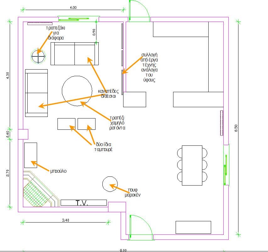
Άντε αγαπητή Κυριακούλα να πιάσουμε και το δικό σου. Αυτό που με κάνει να χαίρομαι είναι ότι αρχίζετε και ζητάτε στυλ συγκεκριμένα και όχι τα ίδια. Άρα άνοιξε το μυαλό σας και το μάτι σας. Έθεσες πολύ σωστά Ελληνιστί το αριστοκρατικό έθνικ ή αλλιώς ethnic chic Κυριακούλα. Αυτό θα κάνουμε σήμερα λοιπόν. Σου έφτιαξα μια κάτοψη με πρόταση τοποθέτησης επίπλων, διαφωνόντας με το κατάστημα γιατί απλώς αν βάλεις τη τιβούλα δεξιά του τζακιού πολύ απλά δε θα βλέπετε. Ο μικρός τοίχος δεν επαρκεί (απ\’ όσο κατάλαβα από την κάτοψη) για να βάλεις κάτι να κάθεσαι. Σου προτείνω να αφήσεις καναπέδες (δύο διθέσιους) σε γωνία μπροστά από την μπαλκονόπορτα και στη μεσοτοιχία. Φυσικά θα μπορούσαν να είναι δύο διαφορετικοί ή ένας καναπές και ένα ανάκλιντρο, ότι σου αρέσει. Στο κέντρο θα μου άρεσε ένα στρογγυλό τραπέζι διαμέτρου 1,20μ. μπόλικο για να είναι εντυπωσιακό. Πίσω από τον καναπέ θα αφήσεις 0,90μ. για να περνάς και να βάλεις μια πλούσια κουρτίνα που θα μπορούσε να τρέχει και σε όλο το πλάτος του τοίχου. Ανάμεσα στους δύο καναπέδες ένα ψηλότερο τραπέζι (Η=0,70μ.) μπορεί να φιλοξενεί κορνίζες και άλλα προσωπικά αναμνηστικά ή όχι αγαπημένα αντικείμενα. Στο δάπεδο θα μου άρεσε ένα χαλί κάτω από το τραπέζι στρογγυλό και αυτό ή κάποιο σοφά επιλεγμένο τετράγωνο κιλίμι τύπου. Ωραίο θα ήταν επίσης και κάποιο μεταξωτό.
Επάνω από τον καναπέ της μεσοτοιχίας μπορείς πάντα να βάλεις ένα ταπισερί εξωτικού ύφους ή μια άλλη επίσης ωραία ιδέα είναι να κρεμάσεις διάφορα τσιμεντοπλακάκια σα συλλογή. Μπορείς να τα βρεις σε μάντρες παλιά ή καινούργια φυσικά. Εφτά ή οχτώ στον αριθμό σαν καδράκια θα έδιναν έναν άλλο τόνο στο χώρο με το χρώμα τους. Στη γωνία προς το καλοριφέρ, ένα παραβάν και αυτό σε ύφος έθνικ θα στόλιζε ωραία και αν είχες στο στρογγυλό τραπεζάκι μια έντονη λάμπα θα γινόταν μια γωνιά μούρλια.
Δεξιά του τζακιού θα έβαζα και εγώ το μπαούλο μου με διάφορα και αριστερά του την τηλεόραση περιστοιχισμένη και αυτή με κάδρα. Αν μπορούσες να την κρεμάσεις χαμηλά (0,45μ.) και από κάτω να ακουμπήσεις dvd και λοιπά ηλεκτρονικά σε δύο ψάθινα μπαούλα-κουτιά θα ήταν τρέλα. Πίσω της στον τοίχο θα μπορούσες να αμολήσιεις και δύο καλαμωτά ριντό, κρεμασμένα από το δοκάρι μέχρι το δάπεδο. Υπολόγισε τουλάχιστον 1,40μ. πλάτος και τα δύο και μπροστά τους η Τιβί. Χαμηλά τα κουτιά σου και αριστερά και δεξιά μια κατεβασιά από καδράκια. Στον τοίχο που χωρίζει την κουζίνα σου κατάλαβα ότι μάλλον δε χωρά η βιβλιοθήκη σου λόγω βάθους, εγώ πάντως θα έβαζα μια συλλογή από πίνακες και καθρέφτες σε μαροκέν ύφος και στη γωνία προς την κουζίνα μια τεράστια γλάστρα με φυτό εξωτικό, όπως μπανανιά. Μπροστά στο τζάκι ατάκτως θα άφηνα μικρά μαροκινά πούφ για να σκαλίζω τη φωτιά. Αν δεν ανάβεις το τζάκι, μη χάσεις την ευκαιρία να το στολίσεις και αυτό εσωτερικά. Ένα κεφάλι Βούδα και ένας δίσκος ψάθινος, μαζί με ένα κουτί περίεργο θα ήταν μια χαρά. Ένας μεγάλος ασημένιος περίτεχνος δίσκος θα ταίριαζε και επάνω στο τζάκι φυσικά. Φυσικά σου έχω δύο προτάσεις από άποψης χρώματος. Μια έντονη και μια ουδέτερη, μια κανονική και μια πιο σικ που λέμε. Το χρώμα και άρα το τελικό αποτέλεσμα το ρυθμίζεις εσύ κατά βούληση. Αν θέλεις πιο διακριτικό θα κινηθείς στους ουδέτερους τόνους, αν θέλεις χρώμα θα βάλεις μπόλικο.
Απέναντι στην τραπεζαρία δεν έχεις πρόβλημα, απλώς σου λείπει σίγουρα ένα χαλί και κάτι δραστικό επάνω της, όπως ένα τεράστιο ξύλινο ή μπαμπού μπολ με φρούτα και ένα runner φτιαγμένο από παλιά κεντητά σεμέν μεταξωτά, στο μάκρος παρακαλώ. Κάθετα runner γράφουν σε πολύ minimal κομμάτια και μακρύτερα συνήθως. Εσύ θέλεις να την μεγαλώσεις οπτικά και τώρα την κόβεις, οπότε το runner στο μάκρος παρακαλώ. Την κουζίνα αν ολοκληρώσεις το στυλ του υπόλοιπου σπιτιού θα έχεις καταφέρει να την απομονώσεις οπτικά λόγω ύφους. Μπορείς επίσης να κρεμάσεις πάνω από το πάσο δύο ψάθινα ριντό ώστε να ψιλο-κλείνει όταν χρειάζεται.
Ελπίζω να σε κάλυψα μον σερί. Περιμένω απόψεις. Ποια πρόταση διαλέγετε; Την έντονη ή την ουδέτερη;
πάντα δικιά σας
![]()

























































































